Jennifer Aaron
+

Forest Lodge

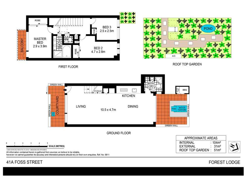
41A Foss Street

Bedrooms
3
Bathrooms
2

International Multi-Award Winning Grand Designs Residence

Impressive for its sophisticated design, this 2 storey contemporary luxury residence, officially opened by Lord Mayor Clover Moore, provides an idyllic urban sanctuary, nestled in a quiet cut-de-sac, with Orphan Creek Bushland Reserve on its rear boundary. Crowned by a 'green roof', it presents streamlined minimalism with state-of-the-art finishes and a focus on privacy and elegant lifestyle to deliver a multi-award winning home featured on the television series Grand Designs Australia.

Open-plan entry level with spacious living & dining areas
2.9 metre ceilings & open access to rear courtyard
Sleek gas kitchen, custom cabinetry, glass splashbacks
Integrated fridge/freezer, abundant storage
Three bedrooms with built-in robes, master with balcony
Floor to ceiling double glazed windows, automatic roller blinds
Two chic designer bathrooms, internal laundry with washer & dryer
Full home automation with ipad, high speed NBN connection
Stunning 8m tall vertical garden, water feature & green fence
Vertical gardens in rear courtyard, gas BBQ, suspend glass table with water feature
3600 litre underground rainwater cistern & automated irrigation
Moments to CBD light rail & bus transport
Close to an array of cafes, shops, the Tramsheds, public & private schools
Walk to Annandale, Glebe, Newtown, Blackwattle Bay, the CBD & University of Sydney




SOLD
Inspection times
Inspect Strictly By Appointment
Share this property
Share
Facebook
LinkedIn
Twitter
Property Information
ID #
0000453332
Type
House
Council rates
$1,369.00 annually
Water rates
$667.00 annually
Contact Jennifer Aaron
Up
Selling your property can be a nerve-wracking experience at the best of times. When you sense your agent isn't performing it can be extremely frustrating and ultimately very expensive. I dedicate myself to ensuring all aspects of your property's sale are managed flawlessly. This is how I consistently achieve outstanding sales results and it's the reason why my clients recommend me to their friends.
Jennifer Aaron © 2016 | disclaimer | privacy statement | Agent Admin |  Website by coreweb | 
designed by obii.mobi