Jennifer Aaron
+

Forest Lodge

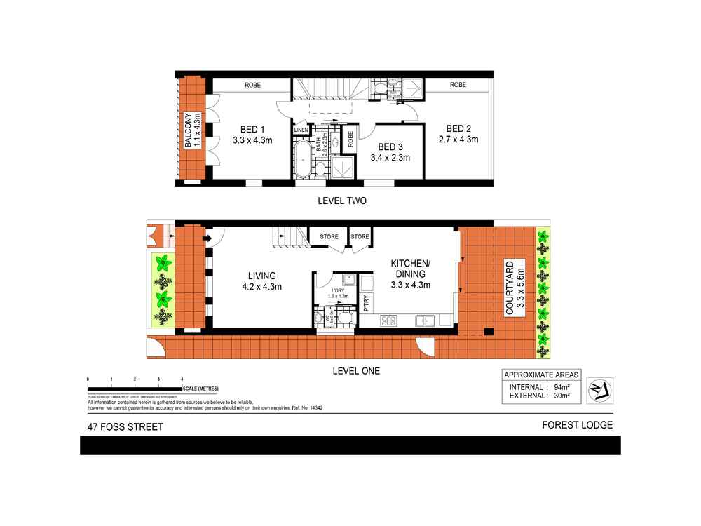
47 Foss Street

Bedrooms
3
Bathrooms
2

A Designer, Lifestyle Home in a Leafy Urban Oasis

Classical architecture meets high-end design in this architect-designed terrace on the city fringe built in 2016. Surrounded by idyllic bushland in a secluded cul-de-sac backing onto Orphan School Creek Reserve, this sanctuary-like designer haven is a short stroll to foreshore parkland, Annandale Village, The University of Sydney, and cosmopolitan King Street Newtown.

An exceptional lifestyle property, walk to everywhere
Walk to Annandale, Newtown, Glebe, Leichhardt, Fish Markets, Tram Sheds & the City
Unique bushland setting, freestanding on one side
An innovative take on Victorian grandeur
Separate living and dining
Gourmet Carrara marble gas kitchen
Abundant storage throughout
3 bedrooms with built-in robes
Oversized master with balcony, eastern aspect
Designer marble bathrooms, powder room
Blackbutt timber floors
Ducted air conditioning
Back-to-base security system
Under stair storage, skylight
Internal laundry with marble tiles
Courtyard with granite tiles & retractable awning
Moments to CBD bus transport
Close to shopping and celebrated dining hubs

In adherence to current Covid 19 restrictions - Jennifer Aaron Real Estate is the following Covid 19 procedures for all inspections:
- Social distancing guidelines must be adhered to at all times
- Masks and hand sanitizer will be required and are provided for all inspection attendees
- Contracts and inspection reports available on request
SOLD
Inspection times
Inspect Strictly By Appointment
Share this property
Share
Facebook
LinkedIn
Twitter
Property Information
ID #
0000451055
Type
House
Building Size
109 sqm (approx)
Council rates
$1,248.00 annually
Water rates
$653.00 annually
Contact Jennifer Aaron
Up
Selling your property can be a nerve-wracking experience at the best of times. When you sense your agent isn't performing it can be extremely frustrating and ultimately very expensive. I dedicate myself to ensuring all aspects of your property's sale are managed flawlessly. This is how I consistently achieve outstanding sales results and it's the reason why my clients recommend me to their friends.
Jennifer Aaron © 2016 | disclaimer | privacy statement | Agent Admin |  Website by coreweb | 
designed by obii.mobi